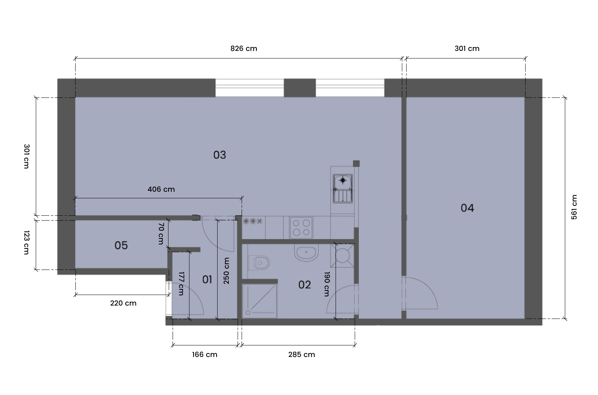
Č. Místnost Plocha
01 Chodba 3,58 m2
02 Koupelna + WC 5,40 m2
03 Obývací pokoj + kk 29,41 m2
04 Ložnice 16,97 m2
Užitná plocha 58,81 m2
S.1 Sklep 14,80 m2
Z.1 Zahrada 77,69 m2

Byt 3

Jiráskova, Soběslav

4 500 000 Kč

Popis ateliéru

Exkluzivní nabídka prodeje bytové jednotky o užitné ploše 58,81 m², která se nachází ve 3. NP ze tří, v cihlovém domě v ulici Jiráskova, č. p. 72, ve městě Soběslav, v Jihočeském kraji.

Bytová jednotka je dispozičně řešena jako 2+kk. Za vstupními dveřmi se nachází prostorná chodba, ze které je přístupný obývací pokoj s kuchyňským koutem, samostatná ložnice a koupelna se sprchovým koutem a toaletou.

Bytová jednotka je ve stavu před dokončením, jedná se tedy o novostavbu. Topení je zajištěno elektrokotlem. Internet a kabelová televize je samozřejmostí, do domu je zaveden datový kabel a instalována anténa.

K jednotce náleží sklep o ploše 14,80 m2, zahrada 77,69 m2 a dvě parkovací stání.

Základní údaje

Dispozice:
2+kk
Podlaží:
3. NP
Stav jednotky:
Před dokončením

Plochy

Užitná plocha:
58,81 m2
Sklep:
14,80 m2
Zahrada:
77,69 m2

Mám zájem o tuto jednotku

    Video prohlídka

    Fotogalerie

    Lokalita na mapě

    Co najdete v okolí...