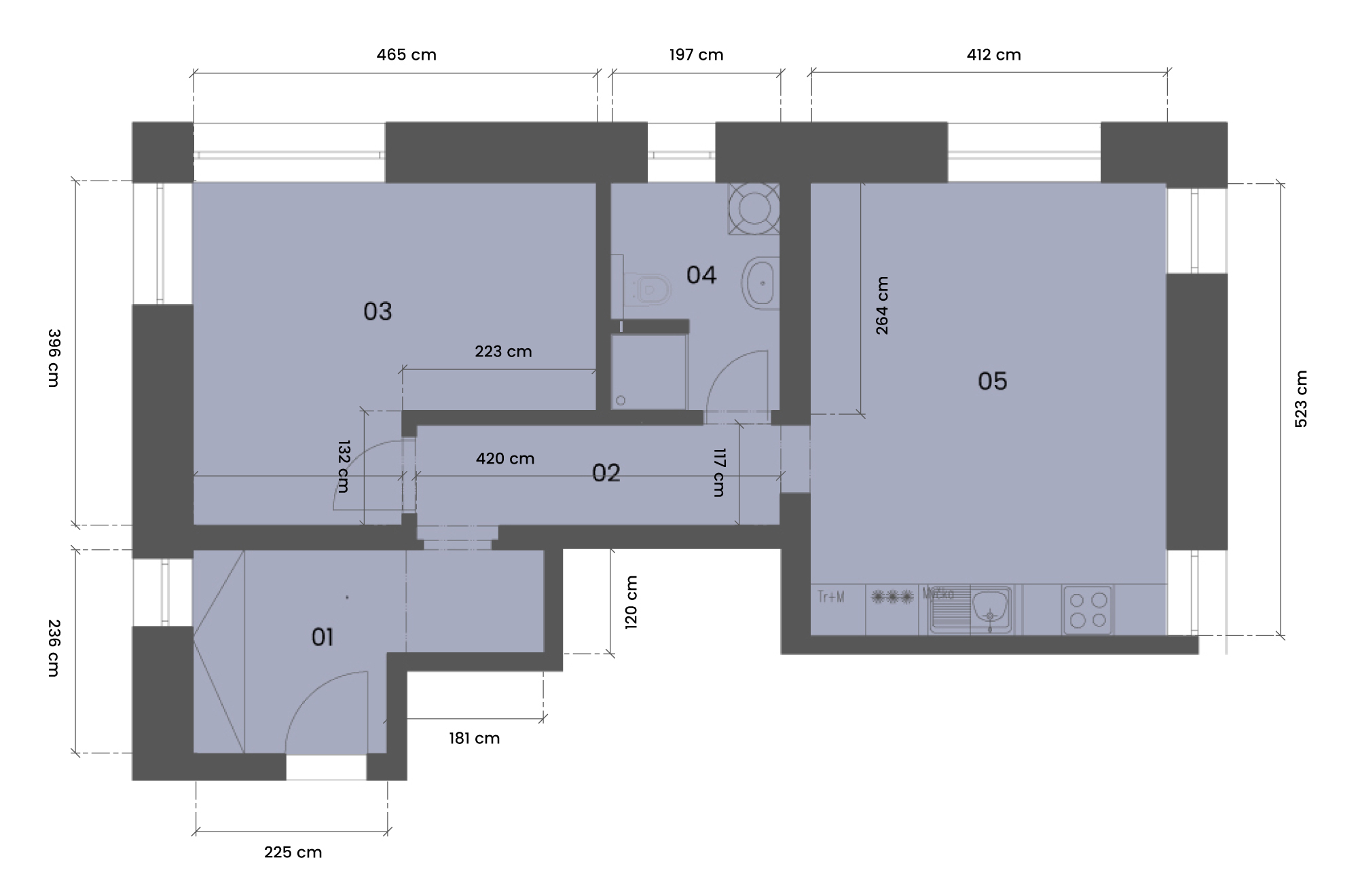
Č. Místnost Plocha
01 Chodba 7,47 m2
02 Chodba 4,91 m2
03 Koupelna + WC 5,17 m2
04 Obývací pokoj + kk 21,50 m2
05 Předsíň 4,91 m2
Užitná plocha 54,49 m2
S.1 Sklep 5,74 m2
Z.1 Zahrada 77,83 m2

Byt 2

Jiráskova, Soběslav

4 500 000 Kč

Popis bytu

Exkluzivní nabídka prodeje bytové jednotky o užitné ploše 54,49 m², která se nachází ve 2. NP ze tří, v cihlovém domě v ulici Jiráskova, č. p. 72, ve městě Soběslav, v Jihočeském kraji.

Bytová jednotka je dispozičně řešena jako 2+kk. Za vstupními dveřmi se nachází prostorná předsíň, na kterou navazuje chodba, ze které je přístupný obývací pokoj s kuchyňským koutem, samostatná ložnice a koupelna se sprchovým koutem a toaletou.

Bytová jednotka je ve stavu před dokončením, jedná se tedy o novostavbu. Topení je zajištěno elektrokotlem. Internet a kabelová televize je samozřejmostí, do domu je zaveden datový kabel a instalována anténa.

K jednotce náleží sklep o ploše 6,59 m2, zahrada 77,83 m2 a dvě parkovací stání.

Základní údaje

Dispozice:
2+kk
Podlaží:
2. NP
Stav jednotky:
Před dokončením

Plochy

Užitná plocha:
54,49 m2
Sklep:
6,59 m2
Zahrada:
77,83 m2

Mám zájem o tuto jednotku

    Video prohlídka

    Fotogalerie

    Lokalita na mapě

    Co najdete v okolí...